SSJ2-10D延時繼電器-上海上繼科技有限公司
發表時間:2020-04-14 15:39 瀏覽次數:1005 〖返回〗一、SSJ2-10D延時繼電器型號命名及含義


二、SSJ2-10D延時繼電器技術參數
1.額定電壓:交流100V, 110V, 220V, 380。
2.額定頻率: 50Hz。
3.繼電器動作電壓不大于70%額定電壓。
4.繼電器返回的電壓不小于10%額定電壓。
5.在額定電壓下繼電器滑過觸點J1和終止觸點J2的延時平均誤差絕對值,在整定范圍內不高過0.1%整定值+10ms。
6.在額定電壓下繼電器斷電延時的一致性絕對值不超過0.1 %整定值+10ms。
7.兩付延時觸點J1和J2可各自獨立整定,時間整定范圍均為0.02s~9.99s,而延時整定值可以不同或相同。
8.在額定電壓下繼電器消耗的功率不大于5VA。
9.繼電器允許長期承受110%額定電壓。
10.繼電器在電壓不大于250V,電流不大于1A(時間常數為5ms±0.75ms)在直流有感負荷電路中,觸點斷開容量為30W。在電壓不大于250V,電流不大于1A,功率因素cos(l)=0.4±0.1的交流電路中,觸點斷開容量為50VA。長期允許通電電流為5A。
11.絕緣電阻
繼電器各電路與外露的非帶電金屬部分之間,以及在電氣上無聯系的各電路之間,用開路電壓為500V的測試儀器測量,其絕緣電阻值應不小于300M0。
12.介質強度
繼電器各電路與外露的非帶電金屬部分之間,以及在電氣上無聯系的各電路之間,應能承受有效值2kV,頻率為50Hz的交流試驗電壓歷時1min試驗,而無絕緣擊穿或閃絡現象。
13.繼電器能在-10°C~+40°C溫度范圍內可靠工作。
14.繼電器機械壽命不低于105次,電壽命不低于104次。
15.繼電器重量:約0.5kg。
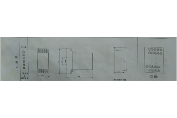
三、SSJ2-10D延時繼電器開孔尺寸

公司介紹:上海上繼科技有限公司是一家專業從事電力系統繼電保護及智能電網電力自動化產品的研發、設計、生產、銷售和服務為一體的高科技公司。擁有資深繼電保護專家團隊和國內**的檢測儀器及校驗設備。同時還引用國內外先進技術,來進行技術創新。本公司的產品廣泛用于電力、工礦、鐵路、建筑等國家重大工程輸配變電系統上,產品遠銷東南亞及中東地區。產品通過國家繼電保護及自動化設備質量監督檢驗中心檢測,獲得ISO9001國際質量體系認證。“科技創新,誠信務實”是公司的經營理念,本公司以高超的技術支持和對用戶高度負責的售后服務贏得了輸配電成套企業的信賴,且樹立了良好的信譽。
公司主營:繼電器(時間繼電器,電壓繼電器,電流繼電器,中間繼電器,信號繼電器,閃光繼電器,沖擊繼電器,同步檢查繼電器,接地繼電器,差動繼電器,重合閘繼電器,絕緣監視繼電器,雙位置繼電器,模數化繼電器),微機保護裝置,電力儀表,智能操控裝置
上海上繼科技有限公司(專注電力保護繼電器生產廠家)銷售熱線:021-57233089 QQ:1932551438
{以上內容僅供參考,上海上繼科技有限公司有最終解釋權}
更多繼電器精彩文章——DZB-259X中間繼電器產品價格及技術條件
- 上一篇:SSJ2-10C延時繼電器
- 下一篇:DSJ-11時間繼電器





