DZB-552繼電器的原理及參數-上海上繼科技有限公司
發表時間:2019-06-15 16:29 瀏覽次數:912 〖返回〗
一、DZB-552繼電器的用途
DZB-552繼電器可用于電力系統二次回路,也可在工業自動化控制回路上,作為轉換控制電路或擴大被控制電路范圍及船舶電站之用。
二、DZB-552繼電器的原理
該繼電器為電磁拍合式結構,并帶有保持線圈,由電磁系統,接觸系統二部分組成 ,當線圈通電時.通過鐵芯產生磁場吸合吸片, 由吸片帶動簧片,使觸點回路轉
換,觸點采用雙觸點接觸 ,有接觸電阻小、接觸可靠性強、斷開負荷容量大等優點。繼電器外殼采用引進Combiflex凸出式模數化插入結構。
三、DZB-552繼電器的優勢
1繼電器可以電壓起動電流自保(最多有三個電流繞組)。
2線圈激勵為直流。
3能提供7付動合、動斷及轉換觸點,結構緊法。
4通過罩殼上的小孔拔動銜鐵,可以試驗觸點動作情況。
四、DZB-552繼電器的參數
1動作電壓≤70%額定電壓,動作電流≤80%額定電流。
2保持值:電壓≤70%額定電壓,電流≤80%額定電流。
3返回> 5%額定值。
4動作時間<40ms。
5線圈功耗:電壓線圈≤4W,電流線圈≤2W。
6觸點長期通過5A電流,并允許通過50A電流時間1s或通過25A電流時間4s。
7觸點能力與RXMA1型相同。
8絕緣耐壓50Hz, lmin, 2kV。
9沖擊電壓5?。
10能承受5-15Hz中等震級地震波沖擊。
11額定電壓、額定電流及線圈阻值。

12繼電器觸點形式及代號

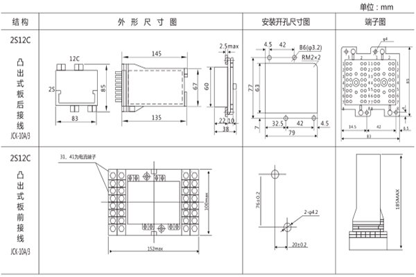
五、DZB-551繼電器的安裝尺寸
如圖所示

上海上繼科技有限公司(專注電力保護繼電器生產廠家)銷售熱線:021-57233089 QQ:1932551438
{以上內容僅供參考,上海上繼科技有限公司有最終解釋權}
更多繼電器精彩文章——多功能電力儀表





