JZJ-410靜態中間繼電器型號含義及接線圖-上海上繼科技有限公司
發表時間:2019-08-01 10:51 瀏覽次數:870 〖返回〗
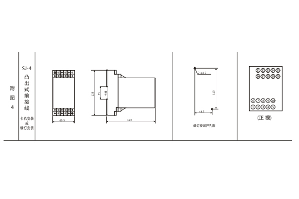
一、JZJ-410靜態中間繼電器
外形及開孔尺寸

二、JZJ-410靜態中間繼電器技術條件
1、環境基準條件
環境溫度: 20°C±2°C
相對濕度:45%~74%
大氣壓力:80Kpa~106Kpa
2、正常使用條件
環境溫度:-25°C~+40°C
環境相對濕度:不大于90%
大氣壓力:80Kpa~110Kpa
存儲和運輸過程中的極限溫度: -25°C~75°C
使用地點的海拔高度:不高于2500米
使用環境的周圍介質無爆炸危險品;不含有腐蝕性氣體;所含導電塵埃的濃度不應使絕緣水平降低到允許值以下。
3、 繼電器額定值 額定電壓值:48V, 110V, 220V, AC, DC, 380VAC。
4、觸點容量 在電壓不大于250V,功率因數cosΦ為1.0的交流電路中,可分斷10A。
直流:普通型:接通DC220V, 10A;斷開DC220V,τ=5mS, 50W負載。
B型:接通DC220V, 10A;斷開DC250V, τ=5mS, 500W大容量角空點,極限容量為1500W。
5、 保持值 0.7 ~ 1.2倍額定電壓 JZ-系列快速中間繼電器動作時間和返回時間不大于15mS。
6、 功耗 在額定電壓下不大于6W。
7、絕線電阻 用1000V揺表測量各引出端子對外殼鎖緊螺釘之間絕緣電阻不小于10MΩ。8絕緣電壓 各引出端子對外殼鎖緊螺釘能承受工頻2000V,同組觸點之間能承受工頻1000V,歷時一份鐘試驗,無擊穿。
8、電壽命 A型: DC250V回路,切斷電流,τ=5mS, 50W, 10?次以上;
B型: DC250V回路,切斷電流τ=5mS, 500W, 104次以上; 1500W, 103次。
9、機械壽命 觸點無負荷300萬次以上。
三、JZJ-410靜態中間繼電器
內部接線圖及外引接線圖

四、JZJ-410靜態中間繼電器主要性能
常規100V和220V的電磁型中間繼電器所用導線很細,匝數也多,造成容易斷線,可靠性低,動作時間和返回時間本系列中l間繼電器采用靜態電子控制回路控制多個密封進口中間同時導通或斷開。 具有以下性能和特點
1、采用高性能密封繼電器、防潮、防塵、不斷線、可靠性高。
2、動作電壓準確,返回系數高,無抖動,功耗低,多個特點同時動作或返回(可控性100%) 。
3、繼電器動作后有燈光指示、有電源指示。
4、繼電器的電氣壽命和機械壽命長。
5、絕緣耐壓水平高。觸點容量大,觸點接觸電阻小。
6、抗干流特性好,可使用于強干擾或電源電壓質量很差的場所
五、JZJ-410靜態中間繼電器
型號含義
靜態中間繼電器有JZJ(HZJ)、JZY(HZY)、JZL(HZL)、 JZB (HZB)、JZS(HZS)等型號
其中,JZ和HZ表示靜態中間繼電器。第三位字母:J表示交流工作電壓,Y表示直流工作電壓,L表示電流工作,B表示帶保持,S表示帶延時)
隨著繼電器所用場合的不斷增加,繼電器的工藝也在不斷改進,靜態中間繼電器也逐漸朝著輕巧,安裝方便的方向發展。RZY、RZYJ、RZF、RZE系列歐規標準的導軌式靜態中間繼電器,殼體體積小,重量只有200-350g、可無限拼裝,觸點易于擴展,可直接安裝在開關柜35mm導軌條上,從而提高了安裝密度,方便接線。
上海上繼科技有限公司(專注中間繼電器生產廠家)銷售熱線:021-57233089 QQ:1932551438
(以上內容僅供參考,上海上繼科技有限公司有最終解釋權}
更多繼電器精彩文章→JZY-220靜態中間繼電器技術條件及主要性能





