JHS(JSJ)-20交流斷電延時繼電器接線圖及主要用途-上海上繼科技有限公司
發表時間:2019-10-21 15:51 瀏覽次數:993 〖返回〗
一、JHS(JSJ)-20交流斷電延時繼電器用途
JHS(JSJ)-20靜態交流斷電延時繼電器用于交流操作的繼電保護和自動化電路中 , 作為交流瞬時動作斷電后延時返回的時間元件。 JHS-20繼電器完全可取代DSJ-20系列電磁型時間繼電器。
二、JHS(JSJ)-20交流斷電延時繼電器廠家
上海上繼科技有限公司是一家專業從事電力系統繼電保護及電力自動化的高新技術企業。公司主要生產各種微機綜合保護裝置,電力保護繼電器、電力儀表等產品。公司集研發、設計、生產、銷售和服務于一體,致力于為國內外輸配電、水利、城建、能源、礦山、化工客戶提供一整套從低壓到高壓、從硬件到軟件的系統級整體解決方案和配套服務。公司總部設在上海,全國各地設有辦事機構。
三、JHS(JSJ)-20交流斷電延時繼電器工作原理
繼電器的原理框圖如圖1所示。由圖可見,繼電器有晶體振蕩器、分頻器、計數器、 整定開關、驅動電路和電源回路等組成。當繼電器施加額定電壓時,繼電器內部瞬動繼電器和兩個延時執行繼電器瞬時動作,觸點切換,并使電源回路與計時回路斷開,因此計時回路處于失電狀態,以提高繼電器抗干擾性能。當輸入電壓大大降低或完全消失時,瞬動繼電器瞬時返回。(兩個延時執行繼電器仍處于動作狀態) , 觸點也瞬時返回,使儲能電源接通計時回路,晶體振蕩產生時鐘脈沖,經分頻后得到10ms計時脈沖,計數器對計時脈沖計數,當所計脈沖數與整定開關預置值符合時,驅動執行繼電器返回,完成斷電延時返回的功能。

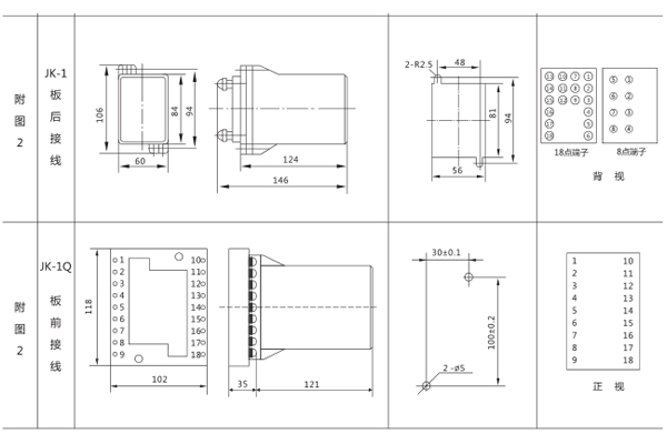
四、JHS(JSJ)-20交流斷電延時繼電器外形及開孔尺寸

五、JHS(JSJ)-20交流斷電延時繼電器背后接線圖

六、JHS(JSJ)-20交流斷電延時繼電器使用方法
繼電器面板圖如圖2所示 ,圖中上部三位數字開關整定執行繼電器K1的延時返回時間t1 ,下部三位數字開關整定執行繼電器K2的延時返回時間t2 ,開關的三位數字乘以0.01S即為時間整定值。例如三數字置數為580,則時間整定值=580x0.01S=5.8S。 t1和t2的整定數值可以相等,也可以不相等。
公司介紹:上海上繼科技有限公司是一家專業從事電力系統繼電保護及智能電網電力自動化產品的研發、設計、生產、銷售和服務為一體的高科技公司。擁有資深繼電保護專家團隊和國內**的檢測儀器及校驗設備。同時還引用國內外先進技術,來進行技術創新。本公司的產品廣泛用于電力、工礦、鐵路、建筑等國家重大工程輸配變電系統上,產品遠銷東南亞及中東地區。產品通過國家繼電保護及自動化設備質量監督檢驗中心檢測,獲得ISO9001國際質量體系認證。“科技創新,誠信務實”是公司的經營理念,本公司以高超的技術支持和對用戶高度負責的售后服務贏得了輸配電成套企業的信賴,且樹立了良好的信譽。
上海上繼科技有限公司(專注電力保護繼電器生產廠家)銷售熱線:021-57233089 QQ:1932551438
{以上內容僅供參考,上海上繼科技有限公司有最終解釋權}
更多繼電器精彩文章——JZ-S/428靜態中間繼電器用途及結構原理





