SJ-11A/13集成電路時間繼電器概述
SJ-11A/13集成電路時間繼電器采用石英晶體振蕩器和CMOS集成專用電路 ,其延時精度遠高于電磁型時間繼電器 ,為電力系統繼電保護縮短主保護和后備保護時間級差提供保證,該繼電器外形、接線方式與DS電磁型時間繼電器完全相同,是更新換代的理想產品、具有精度高、功耗小,動作時間準確,整定直觀方便等優點。
SJ-11A/13集成電路時間繼電器工作原理
SJ-11A/13集成電路時間繼電器采用大規模CMOS專用集成電路。上電瞬間,晶振起振, CUP復位,從零開始正向計數,同時讀取撥盤設定值的時基常數;當計數值與設定值同時,輸出高電平,驅動三極管,出口繼電器動作,且利用觸點自保持,以保證不發生抖動;當電源消失,出口繼電器則返回,工作原理如下圖所示:

SJ-11A/13集成電路時間繼電器型號命名及含義

SJ-11A/13集成電路時間繼電器主要技術參數
4.1 延時范圍和級差 延時范圍: 0.02S-9.99S、 0.1S-99.9S、1M-999M,無標注按0.1S-99.9S供貨。
4.2 延時整定誤差 繼電器20℃±5℃時,施加額定電壓下,繼電器延時整定誤差(包含一致性):整定值≤100S時,誤差<+0.1s;>100S時,誤差<±0.1%。
4.3 返回時間 用切斷電路的方法,使繼電器斷電,繼電器觸點返回至始位置的時間不大于20mS。
4.4 電源電壓允許變動范圍 電源電壓允許變動范圍為額定電壓低0.8~1.1倍。
4.5 觸點容量
繼電器輸出電路的觸點能斷開電壓不大于250V, 時間常數為5±0.75mS的直流有感負荷電路為80W ; 電壓不大于250V的交
流電路(功率因數COSΦ為0.4±0.1)為300VA。繼電器可長期接通10A。
4.6 環境溫度 -10℃~+50℃
4.7 介質強度 繼電器各導電端子連在一起對為露的非常電金屬部分或外殼之間,能承受2000V(有效值0,50Hz的交流電壓,歷時1 分鐘試驗而無絕緣擊穿或飛弧現象。
4.8 絕緣電阻 繼電器各導電端子連在一起對外露的飛帶電金屬部分或外殼之間,用開路電壓500V的兆歐表測量其絕緣電阻不小于300MΩ。
4.9 電壽命繼電器觸點接于規定容量的電路負荷重,能可靠動作及返回,電壽命為105次。
4.10 機械壽命 繼電器不接負荷能可靠動作及返回,其機械壽命為106次
4.11 功率消耗 在額定電壓下,繼電器功率消耗不大于5W。
4.12 抗干擾性能 繼電器的抗干擾負荷DL478-92《靜態繼電保護及安全自動裝置通用技術條件》。
SJ-11A/13集成電路時間繼電器內部接線圖及外引接線圖

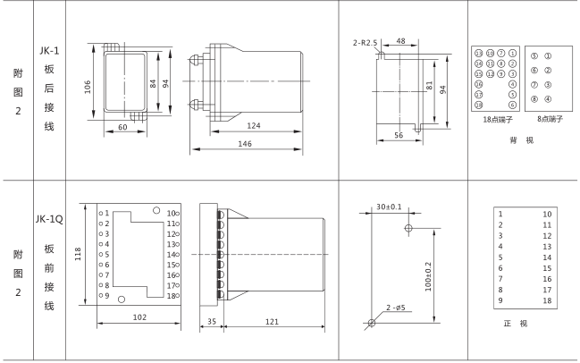
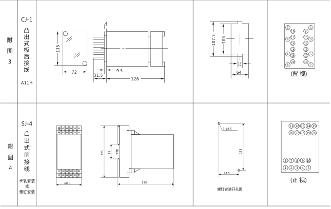
SJ-11A/13集成電路時間繼電器外形尺寸及開孔尺寸






時間繼電器系列
打印當前頁
發郵件給我們: 1932551438@qq.com
手機: 18930817953




